АППАРАТ ВОЗДУШНОГО ОХЛАЖДЕНИЯ С СИСТЕМОЙ РЕЦИРКУЛЯЦИИ ВОЗДУХА УСТАНОВКИ ВАКУУМ-ВЫТЯЖКИ ПРОИЗВОДСТВА «КАРБАМИД» (БЕЗ НЕСУЩЕЙ МЕТТАЛОКОНСТРУКЦИИ, ВЕНТИЛЯТОРОВ И ЭЛЕКТРОДВИГАТЕЛЕЙ) (ОКП361269)
Общие технические условия по ГОСТ Р 51364-99
Аппарат предназначен для конденсации водяного пара в блоке вакуум-вытяжки привод¬ной турбины компрессора углекислого газа производства «Карбамид».
Конструкция и принцип работы:
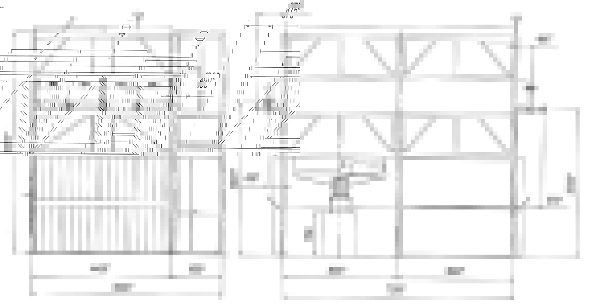
Аппарат шатрового типа имеет шесть осевых вентиляторов.
В трубное пространство секции сверху из парового коллектора в пять рядов поступают водяной пар. Проходя по трубному пространству пучка, пар конденсируется, конденсат собирается внизу и удаляется из нижней камеры через штуцера.
Остатки не сконденсировавшегося пара вместе с «инертами» поступают в шестой верхний ряд секции (дефлегматор), в котором происходит окончательная конденсация остатков пара, конденсат стекает вниз, а «инерты» уходят вверх и удаляются с помощью эжекторов через собственный трубный коллектор. В теплообменных секциях применены трубы 032×2 с диаметром по оребрению 64мм.
Для защиты секции в зимнее время от замерзания над секциями поперек труб располагается по три ряда жалюзи с каждой стороны шатра, которые полностью перекрывают секции, жалюзи снабжены пневмоприводами для автоматической регулировки заслонок.
Аппарат, предназначен для работы в макроклиматических районах с холодным и умеренным климатом. Климатическое исполнение «УХЛ», категория размещения 1 по ГОСТ15150-69, аппарат может устанавливаться в условиях макроклиматических районов с сейсмичностью до 7 баллов.
ТЕХНИЧЕСКАЯ ХАРАКТЕРИСТИКА
Площадь поверхности теплообмена, м2 — 35515
Давление расчетное, МПа — Абсолютный вакуум
Температура расчетная, °С — 90
Количество секций, шт. — 12
Число рядов — 6
— в том числе конденсаторе — 5
— в том числе дефлегматоре — 1
Число ходов по трубам — 1
Число труб секции, шт. — 255
— в том числе конденсаторе, шт — 213
— в том числе дефлегматоре, шт — 42
Коэффициент оребрения — условный
Конденсатор: I ряд — 15,3
II-V ряд — 18,2
Дефлегматор VI ряд — 15,3
Длина труб, мм
-конденсаторе — 7200
— дефлегматоре — 7000
Материальное исполнение — Б1
Тип трубной секции — крышечный
Примечание. Материальное исполнение Б1:
— труба теплообменная — Ст20
— трубный коллектор — Ст20
— решеткатрубная — Ст16ГС; О09Г2С

