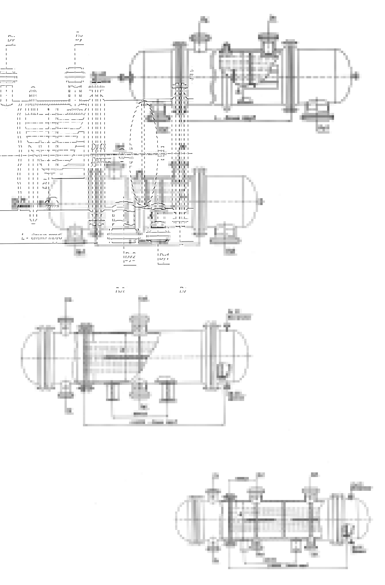
Испарители и конденсаторы холодильные с неподвижными трубными решетками
Испарители предназначены для охлаждения воды, растворов и жидких технологических сред, протекающих по трубам аппаратов, аммиаком, пропаном, пропиленом и другими хладагентами, испаряющимися в межтрубном пространстве аппаратов.
Испарители изготавливаются двух исполнений:
— ИХ-1 — для охлаждения воды и растворов давлением до 0,6 МПа в установках, работающих в пределах температур насыщения от плюс 40°С до минус 40°С;
— ИХ-2 — для охлаждения жидких технологических сред давлением 1,0-2,5 МПа в установках, работающих в пределах температур насыщения от плюс 40°С до минус 60°С.
Конденсаторы (КХ) предназначены для сжижения холодильного агента в аммиачных и углеводородных (пропан, пропилен) холодильных установках общепромышленного назначения, работающих в пределах температур конденсируемого хладагента от 0 до плюс 100°С, при температуре охлаждающей среды от минус 20°С до плюс 50°С.
В испарителях и конденсаторах применяются гладкие теплообменные трубы.
Аппараты могут эксплуатироваться в условиях макроклиматических районов с умеренным и тропическим климатом. Климатическое исполнение «У» и «Т», категория изделия 1 по ГОСТ 15150-69. Поставляются с ответными фланцами, крепежом и прокладками.
Испарители и конденсаторы рассчитаны на установку в географических районах с сейсмичностью менее 7 баллов по принятой в РФ 12-ти бальной шкале.
Пример условного обозначения при заказе:
Испаритель холодильный, исполнения 1, с кожухом диаметром 1000 мм, на условное давление в трубах 0,6 МПа, в кожухе 1,6 МПа, исполнения по материалу Ml, с гладкими теплообменными трубами (Г) диаметром 25 мм и длиной 6 ,м, четырехходовой по трубам, климатического исполнения (У), с деталями для крепления теплоизоляции (И):
Испаритель холодильный 1000ИХ-1-0,6-1,6-М1/25Г-6-4-У-И ТУ 3644-006-00220302-99
Испаритель холодильный, исполнения 2, с кожухом диаметром 1000 мм, на условное давление в трубах 1,6 МПа, в кожухе 2,5 МПа, исполнения по материалу М17, с гладкими теплообменными трубами (Г) диаметром 25 мм и длиной 6 м, четырехходовой по трубам, климатического исполнения (Т), без деталей для крепления теплоизоляции:
Испаритель холодильный 1000ИХ-2-1,6-2,5-М17/25Г-6-4-Т ТУ 3644-006-00220302-99
Конденсатор холодильный с кожухом диаметром 1000 мм, на условное давление в трубах 0,6 МПа, в кожухе 2,0 МПа, исполнения по материалу Ml, с гладкими теплообменными трубами (Г) диаметром 25 мм и длиной 3 м, двухходовой по трубам, климатического исполнения (У), с деталями для крепления теплоизоляции (И):
Конденсатор холодильный 1000КХ-0,6-2,0-М1/25Г-3-2-У-И ТУ 3644-006-00220302-99
По требованию потребителя допускается:
устанавливать дополнительные штуцера диаметром Д<80 мм, но не более 0,1Д, где Д -диаметр аппарата;
принимать уменьшенный диаметр одного или нескольких штуцеров (увеличение диаметра штуцеров не допускается);
увеличивать количество ходов по трубам без смещения расположения штуцеров относительно вертикальной оси;
принимать расположение опор по отношению к штуцерам отличное от расположения, указанного в настоящих технических условиях, а также изменять расстояние между опорами;
изготавливать испарители ИХ-1 с кожухом диаметром от 400 до 1000мм с опорами;
уплотнительную поверхность фланцев выполнять «шип-паз»;
производить крепление труб в трубных решетках обваркой с развальцовкой (при отсутствии специального указания, тип соединения труб с трубными решетками выбирает предприятие-изготовитель);
устанавливать на аппаратах диаметром кожуха 400-1400 мм шарнирное устройство для подвешивания крышек;
не устанавливать детали для крепления изоляции.
Примечание. Допускается изготавливать аппараты на конкретные расчетные условия с сохранением основных размеров и исполнений по материалу согласно условному обозначению заказанного аппарата, при этом массу аппаратов определяют, исходя из расчетных значений давления и температуры.

