Аппараты воздушного охлаждения зигзагообразные с двумя вентиляторами 2АВЗ-Д (ОКП 36 1262)
Общие технические условия по ГОСТ Р 51364-99
Аппараты предназначены для охлаждения и конденсации газообразных, парообразных и жидких сред в технологических процессах нефтеперерабатывающей, нефтехимической и смежных отраслях промышленности.
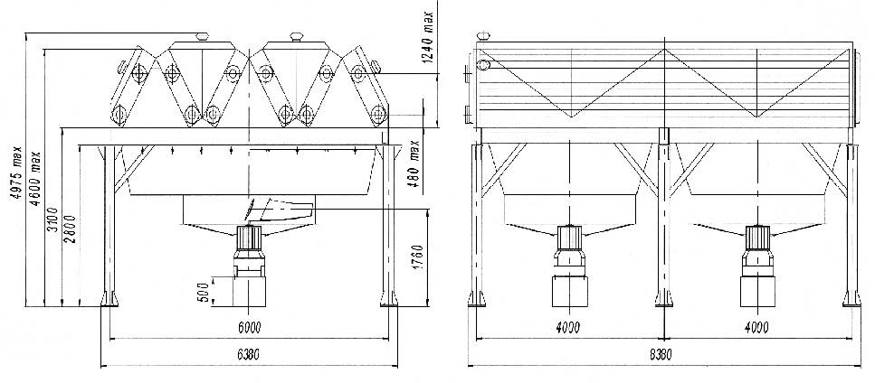
Аппарат состоит из шести трубных секций, составленных из биметаллических сребренных труб. Секции расположены в форме зигзага под острым углом друг к другу и к горизонтальной опорной площадке. Секции монтируются на металлической конструкции. На отдельной раме размещается привод с колесом вентилятора. Колесо вентилятора, вращаясь в полости коллектора, прогоняет воздух через межтрубное пространство секций, охлаждая продукт.
По требованию заказчика аппарат дополнительно может быть укомплектован увлажнителем, подогревателем, жалюзи. Жалюзи выполняются с ручной регулировкой или с автоматическим поворотом заслонок.
Возможно исполнение аппаратов с системой рециркуляции, состоящей из панелей, жалюзи верхних, переточных и боковых. Устройство рециркуляции обеспечивает рециркуляцию нагретого в трубных секциях воздуха для предотвращения переохлаждения продукта в зимнее время.
Аппараты могут быть укомплектованы колесами вентиляторов из композитных материалов, а электродвигатели — преобразователями частоты вращения. Использование преобразователей приводит к снижению электропотребления и упрощению конструкции колес вентиляторов за счет исключения установки пневмопривода для автоматического регулирования угла установки лопастей, и вследствии этого упрощению обслуживания колес вентиляторов.
Присоединительные и габаритные размеры в соответствии с СТО 301-09-9-19-97, ТУ 26-02-1157-96.
ТЕХНИЧЕСКАЯ ХАРАКТЕРИСТИКА
Площадь поверхности теплообмена — 3450*11400 м2
Давление условное — 0,6; 1,6; 2,5; 4,0; 6,3 МПа
Количество секций в аппарате — 6 шт
Диаметр колеса вентилятора — 2,8 м
Мощность тихоходного электродвигателя — 22; 30; 37 кВт
Количество колес вентиляторов в аппарате — 2 шт
Скорость вращения колеса вентилятора — 428,6 об/мин
Коэффициент оребрения труб (условный) — 9; 14,6; 20
Число рядов труб в секции — 4; 6; 8
Число ходов по трубам в секции — 1; 2; 2а; 4; 4а; 8
Длина труб в секции — 8 м
Материальное исполнение секции — Б1;Б2.1;БЗ;Б4;Б5
Тип трубных секций — крышечный
Примечание: Материал внутренней трубы в зависимости от материального исполнения Б1 -сталь20; Б2.1 — 15Х5М или Х8; БЗ-12Х18Н10Т, 08Х18Н10Т, 08Х22Н6Т; Б4 — сталь 10Х17Н13М2Т; Б5- ЛАМШ77-2-0,05.
Пример условного обозначения: 2АВЗ-Д-20-Ж-0,6-Б1-22-П/4-2-8УХЛ1. Аппарат с коэффициентом оребрения теплообменных труб 20, с жалюзи, условным давлением 0,6МПа, материальным исполнением секции Б1, мощностью электродвигателя 22кВт, колесом вентилятора с пневматическим механизмом поворота лопастей П, с числом рядов труб в секции 4, с числом ходов по трубам 2, длиной оребренных труб 8м, климатическим исполнением в соответствии с ГОСТ 15150-69.

