Аппараты воздушного охлаждения газа с рециркуляцией охлаждающего воздуха (ОКП 36 1269)
Общие технические условия по ГОСТ Р 51364-99
Аппараты воздушного охлаждения горизонтального типа с рециркуляцией для компрессорных станций предназначены для охлаждения газа после 1 и 2 ступени компрессора и масла в системе смазки компрессоров, установки мощностью 6000кВт для газлифтной эксплуатации нефтяных скважин.
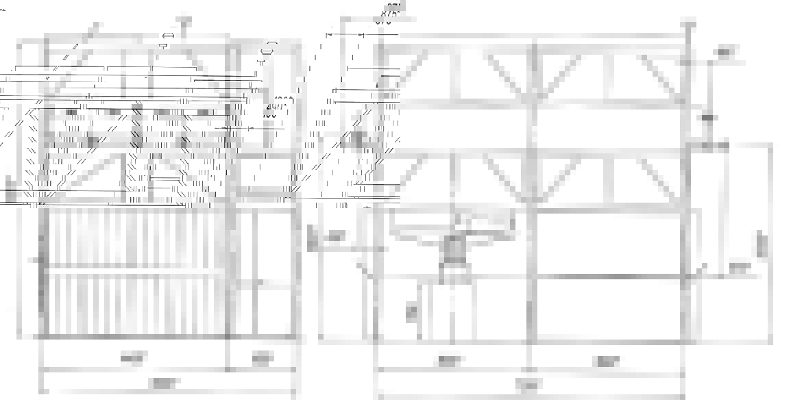
Аппарат состоит из двух горизонтально расположенных секций, собранных из накатных сребренных биметаллических труб. В секциях под сребренными трубами предусмотрены змеевики подогрева воздуха. Секции установлены на несущей металлоконструкции. Вентиляторы, один из которых включает механизм изменения угла наклона лопастей с пневмоприводом, вращаясь в полости коллектора, прогоняет воздух через межтрубное пространство секций, охлаждая продукт. Для предотвращения переохлаждения продукта в зимний период работы предусмотрена система рециркуляции нагретого воздуха. Для этой цели в аппарате имеются боковые жалюзи, расположенные на торцевых стенках аппарата, промежуточные жалюзи в боковом коробе и верхние жалюзи, расположенные над секциями. Жалюзи снабжены пневмоприводами. Аппарат укомплектован коллекторами подвода и отвода газа.
Аппараты могут быть укомплектованы колесами вентиляторов из композитных материалов и преобразователем частоты вращения электродвигателя. Использование преобразователей частоты приводит к снижению электропотребления и упрощению конструкции колес вентиляторов за счет исключения необходимости регулирования угла установки лопаток и упрощению вследствие этого обслуживания вентиляторов.
ТЕХНИЧЕСКАЯ ХАРАКТЕРИСТИКА
Основные параметры (АВГР-Г1-С; АВГР-Г2-С; АВГР-МС)
Поверхность теплообмена секции, м2 — (2435; 1624; 1870)
Давление рабочее, МПа — (3.65; 11.6; 1.0)
Температура продукта на входе, °С — (232; 200; 130)
Температура продукта на выходе, °С — (40; 40; 70)
Мощность электродвигателя, кВт — (30; 30; 22)
Число рядов труб в секции — (6; 4; 4)
Число ходов по трубам — (2; 4; 4)
Коэффициент оребрения труб — (20; 20; 9)
Материальное исполнение секции — (БЗ; БЗ; Б1)
Длина труб в секции, м — (8; 8; 8)
Диаметр колеса вентилятора — (2.8; 2.8; 2.8)
Количество колес вентиляторов, шт — (2; 2; 2)
Скорость вращения колеса вентилятора, об/мин — (426; 426; 426)
Число секций в аппарате, шт — (2; 2; 2)
Количество аппаратов в установке — (3; 3; 3)
Тип теплообменных секций — камерный
Примечание: Материал внутренней трубы в зависимости от материального исполнения Б1 — сталь 20: БЗ — 12Х18Н10Т, 08Х18Н10Т, 08Х22Н6Т.

