Блок аппаратов воздушного охлаждения с рециркуляцией воздуха БАВО-К (ОКП 36 1269)
Общие технические условия по ГОСТ Р 51364-99
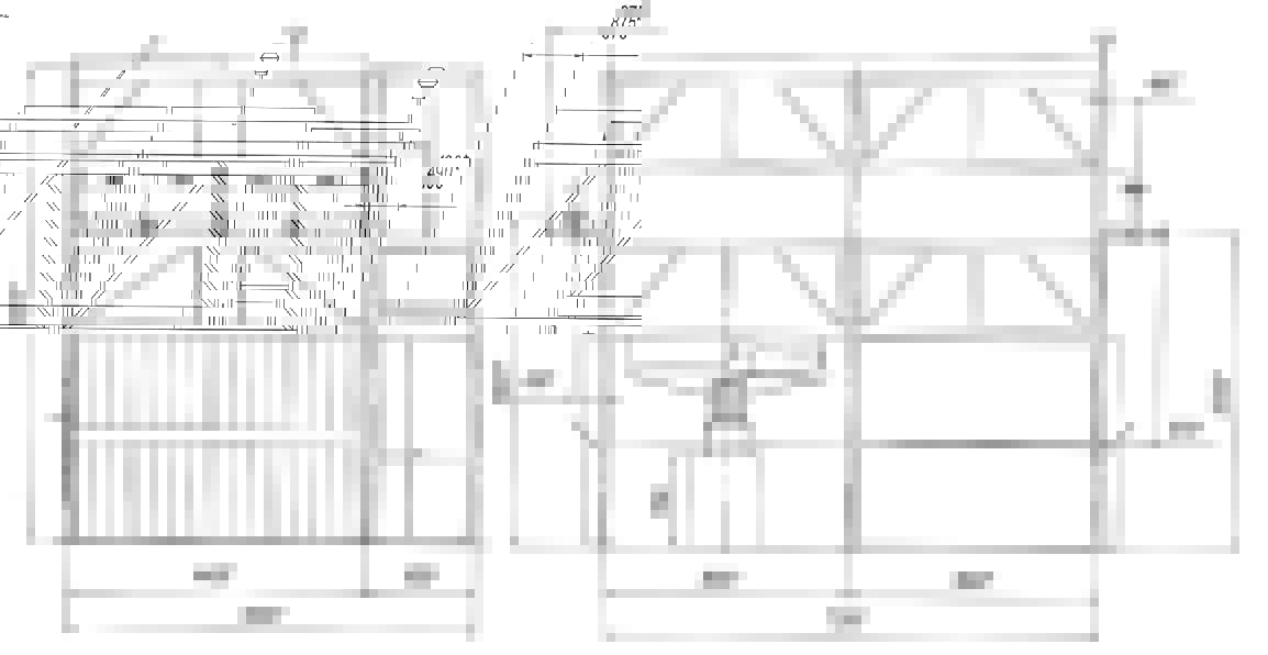
Блок аппаратов воздушного охлаждения газа предназначен для охлаждения нефтяного газа после цилиндров низкого давления (ЦНД), высокого давления (ЦВД) компрессора и масла.
Каждый аппарат блока состоит из двух горизонтально расположенных трубных секций, собранных из биметаллических сребренных труб, двух колес обслуживания вентиляторов с изменяющимся углом поворота лопастей, один из которых с пневмоприводом поворота лопастей. В трубных секциях предусмотрены подогреватели воздуха. Трубные секции уста новлены на опорной металлоконструкции. На металлоконструкции предусмотрены места для установки грузоподъемных механизмов для демонтажа колес вентиляторов в период проведения ремонтных работ. Аппарат имеет узел рециркуляции воздуха, состоящий из панелей и жалюзи с пневмоприводами. Аппараты могут быть укомплектованы колесами вентиляторов из композитных материалов и преобразователями частоты вращения электродвигателя. Использование преобразователей частоты приводит к снижению электропотребления и упрощению конструкции колес вентиляторов за счет исключения необходимости регулирования угла установки лопастей и упрощению вследствие этого обслуживания вентиляторов.
ТЕХНИЧЕСКАЯ ХАРАКТЕРИСТИКА
Основные параметры масла
АВО ЦНД
АВО ЦВД
АВО масла
Количество секций в аппарате, шт
2
2
2
Количество аппаратов в блоке, шт
2
2
2
Коэффициент оребрения труб (условный)
20
20
9
Диаметр колеса вентилятора, м
2,8
2,8
2,8
Количество колес вентиляторов в аппарате, шт
2
2
2
Мощность электродвигателя, кВт
30
30
30
Частота вращения колеса вентилятора, об/мин
428,6
428,6
428,6
Число рядов труб в секции
6
6
6
Число ходов по трубам в секции
1
3
3
Длина труб, м
8
8
8
Давление рабочее, МПа
0,93
3,63
0,6
Площадь поверхности теплообмена, м2
5650
2825
2670
Материальное исполнение секции
Б1
Б3
Б1
Тип трубной секции
камерный
камерный
камерный
Примечание: Материал внутренней трубы в зависимости от материального исполнения Б1 -сталь 10,20;БЗ- 12Х18Н10Т,08Х18Н10Т,08Х22Н6Т.

