Аппараты воздушного охлаждения горизонтального типа 1АВГ , 2АВГ (ОКП 36 1261)
Общие технические условия по ГОСТ Р 51364-99
Предназначены для охлаждения жидких и парообразных сред в технологических процессах нефтеперерабатывающей, нефтехимической и смежных отраслях промышленности.
Аппарат состоит из двух трубных секций, составленных из оребренных биметаллических труб. Секции расположены горизонтально и монтируются на металлической конструкции. Привод колеса вентилятора размещается на отдельной раме. Колесо вентилятора, вращаясь в полости коллектора, прогоняет воздух через межтрубное пространство секций, охлаждая продукт.
По требованию заказчика аппарат дополнительно может быть укомплектован увлажнителем, подогревателем, жалюзи. Жалюзи выполняются с ручной регулировкой или автоматическим поворотом заслонок.
Возможно исполнение аппаратов с системой рециркуляции, состоящей из панелей, жалюзи верхних, переточных и боковых. Устройство рециркуляции обеспечивает рециркуляцию нагретого в трубных секциях воздуха для предотвращения переохлаждения продукта в зимнее время.
Аппараты могут быть укомплектованы колесами вентиляторов из композитных материалов, а электродвигатели преобразователями частоты вращения. Использование преобразователей приводит к снижению электропотребления и упрощению конструкции колес вентиляторов за счет исключения установки пневмопривода для автоматического регулирования угла установки лопастей, и вследствие этого упрощению обслуживания колес вентиляторов.
По особому заказу возможно изготовление аппаратов воздушного охлаждения с числом рядов 8 и с комплектацией электродвигателями мощностью 37 кВт.
Вид климатического исполнения аппаратов У1 и УХЛ1 по ГОСТ 15150-69. Аппараты предназначены для установки в районах с сейсмичностью 7 и 9 баллов (СНиП П-7-81) и скоростным напором ветра по IV и V географическому району (СНиП 2.01.07-85).
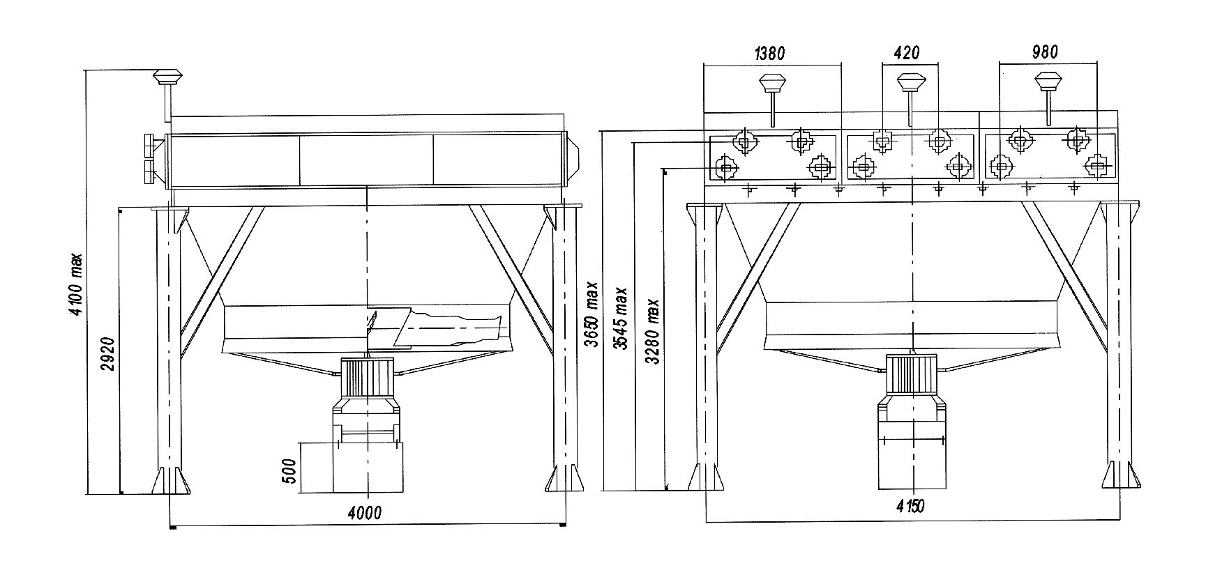
Присоединительные и габаритные размеры аппаратов в соответствии с СТО 301-09-9-20-97 для 1АВГ и ТУ 26-02-1158-96 для 2АВГ.
ТЕХНИЧЕСКАЯ ХАРАКТЕРИСТИКА
Площадь поверхности теплообмена:
— 1АВГ 425*4760 м2
— 2АВГ 424*4766 м2
Давление условное — 0,6; 1,6; 2,5; 4,0; 6,3 МПа
Диаметр вентилятора — 2,8 м
Мощность тихоходного электродвигателя — 22; 30 кВт
Количество колес вентиляторов в аппарате:
— при длине теплообменных труб в секции 8м 2 шт
— при длине теплообменных труб в секции 4м 1 шт
Скорость вращения колеса вентилятора — 428,6 об/мин
Коэффициент оребения труб (условный) — 9; 20
Число рядов труб в секции — 4:6
Число ходов по трубам в секции:
— при числе рядов труб в секции 4 — 1;2;4
— при числе рядов труб в секции 6 — 1;2;3;6
Длина труб в секции, — 4; 8 м
Материальное исполнение в секции — Б1;Б2.1;БЗ;Б4
Тип трубных секций — камерный
Примечание: Материал внутренней трубы в зависимости от материального исполнения Б1-сталь 20; Б2.1 — 15Х5М или Х8; БЗ — 12Х18Н10Т, 08Х18Н10Т, 08Х22Н6Т; Б4 — 10Х17Н13М2Т, 08Х21Н6М2Т.
Пример условного обозначения: 1АВГ-9-Ж-0,6-Б1-30 / 4-2-4 УХЛ1.
Аппарат горизонтального типа с коэффициентом оребрения теплообменник труб 9, с
жалюзи, условным давлением 0,6 МПа, материальным исполнением секции Б1, мощностью
электродвигателя ЗОкВт, с числом рядов труб в секции 4, с числом ходов по трубам в секции
2, длиной труб 4м, климатическим исполнением в соответствии с ГОСТ 15150-69.

